Rif: 339
SORA
FROSINONE
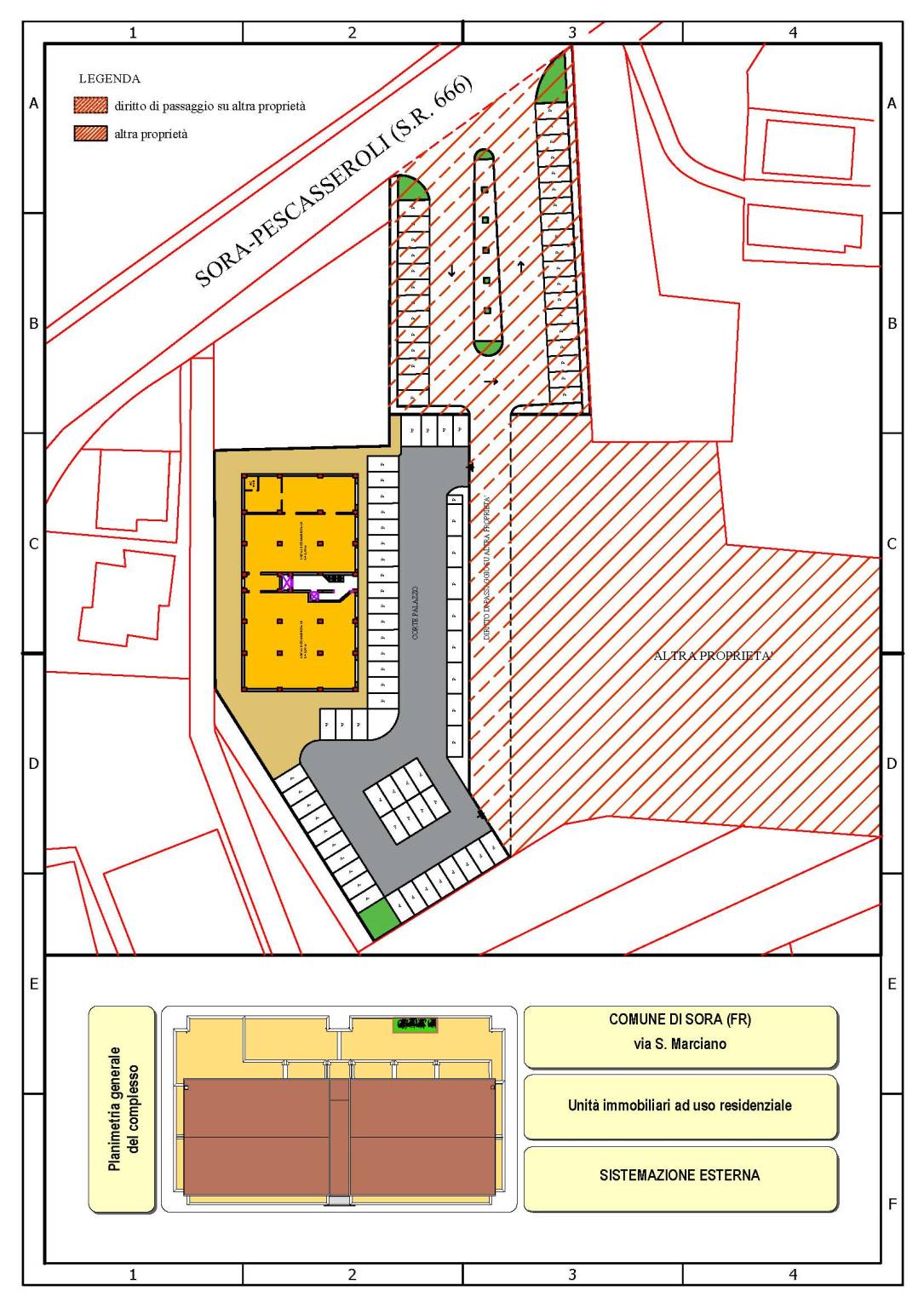
Fabbricato sito nel Comune di Sora (FR) in via San Marciano snc, le cui caratteristiche, sinteticamente, sono descritte di seguito. Fanno parte della proprietà, oltre il predetto edificio, anche i terreni circostanti (superficie di circa 9.000 mq). L'intera proprietà ricade in zona di espansione (E4) del vigente PRG comunale.
Posizione strategica.
- Il complesso immobiliare, con accesso diretto alla SS. 666, è situato nei pressi di un crocevia stradale strategico: vicino all'uscita "Sora centro" della Superstrada Avezzano-Cassino ( distanza circa 800 m), a poche decine di metri dall'incrocio con via Marsicana ed a breve distanza dal centro città (circa 1000 m dall'attuale Caserma dei Carabinieri). Altre distanze dai punti strategici più prossimi sono le seguenti: m 700 dall'ospedale cittadino SS. TRINITA'; cm 700 dall'eliporto; m 850 dalla Caserma militare (Corpo speciale esercito reggimento "Cordenons").
Descirizione del fabbricato.
- L'edificio, censito in catasto urbano al fg. 23 mapp. 378, ha una struttura in cemento armato ed è costituito da cinque piani fuori terra per una superficie totale coperta di circa 3.000 mq. Il Piano Terra, a destinazione commerciale, ha una superficie di circa 600,00 mq, mentre i restanti piani, a destinazione residenziale, sono costituiti complessivamente da 20 unità abitative di diverse consistenze. Il tetto è del tipo a capanna con il manto di copertura in tegole di laterizio. Le tamponature perimetrali esterne sono rifinite ad intonaco per il piano terra, ed a mattoni in cotto a faccia vista per i piani superiori. L'immobile, ad esclusione del piano terra, è privo di finiture, di impianti ed infissi.
Piazzale di 1.500 mq, posti auto fino a 40.
Posizione strategica.
- Il complesso immobiliare, con accesso diretto alla SS. 666, è situato nei pressi di un crocevia stradale strategico: vicino all'uscita "Sora centro" della Superstrada Avezzano-Cassino ( distanza circa 800 m), a poche decine di metri dall'incrocio con via Marsicana ed a breve distanza dal centro città (circa 1000 m dall'attuale Caserma dei Carabinieri). Altre distanze dai punti strategici più prossimi sono le seguenti: m 700 dall'ospedale cittadino SS. TRINITA'; cm 700 dall'eliporto; m 850 dalla Caserma militare (Corpo speciale esercito reggimento "Cordenons").
Descirizione del fabbricato.
- L'edificio, censito in catasto urbano al fg. 23 mapp. 378, ha una struttura in cemento armato ed è costituito da cinque piani fuori terra per una superficie totale coperta di circa 3.000 mq. Il Piano Terra, a destinazione commerciale, ha una superficie di circa 600,00 mq, mentre i restanti piani, a destinazione residenziale, sono costituiti complessivamente da 20 unità abitative di diverse consistenze. Il tetto è del tipo a capanna con il manto di copertura in tegole di laterizio. Le tamponature perimetrali esterne sono rifinite ad intonaco per il piano terra, ed a mattoni in cotto a faccia vista per i piani superiori. L'immobile, ad esclusione del piano terra, è privo di finiture, di impianti ed infissi.
Piazzale di 1.500 mq, posti auto fino a 40.
Consistenze
| Descrizione | Superficie | Sup. comm. |
|---|---|---|
| Principali | ||
| Negozio - piano terra | 600 Mq | 600 Mqc |
| Immobile - 1° piano | 600 Mq | 600 Mqc |
| Immobile - 2° piano | 600 Mq | 600 Mqc |
| Immobile - 3° piano | 600 Mq | 600 Mqc |
| Immobile - 4° piano | 600 Mq | 600 Mqc |
| Esterno - piano terra | 1.900 Mq | 570 Mqc |
| Totale | 3.570 Mqc | |

